令和7年度上期
問題41
⑪で示す図記号の機器は。

【解説】
⑪はこの部分です。

BEに3P100Aと傍記されているので過負荷保護付き漏電遮断器です。
また、図記号の右下に、欠相保護付きと、傍記されています。
したがってロが正しいと思います。
【答え・ロ】
問題42
⑫で示すボックス内の接続をリングスリーブで圧着接続した場合のリングスリーブの種類,個数及び圧着接続後の刻印との組合せで,正しいものは。
ただし,使用する電線はすべてVVF1.6とし,写真に示すリングスリーブ中央の〇,小,中は刻印を表す。また,地下1階へ至る配線の電線本数(心線数)は最少とする。

【解説】
⑫はこの部分です。

複線図の問題ですので、まずは複線図を書きましょう。
⑫の部分はアの照明の3路スイッチのみです。

ざっくり書きましたがポイントを説明します。
⑫の部分は1FとB1Fの階段を三路スイッチで入り切りする回路のみです。
三路スイッチの基本は
0は片方が照明でもう片方の0に電源を繋ぐ。
ここではB1Fの三路スイッチに電源100Vを繋ぎ1Fの三路スイッチに照明の非接地側を繋ぎます。
あとB1Fの三路スイッチの1と1Fの三路スイッチの1を繋ぐ。
次にB1Fの三路スイッチの3と1Fの三路スイッチの3を繋ぐ。
つまり
B1Fの三路スイッチの1と1Fの三路スイッチの1を繋ぐ。(VVR1.6 x 2(〇))
B1Fの三路スイッチの3と1Fの三路スイッチの3を繋ぐ。(VVR1.6 x 2(〇))
になります。
次に電源線は一方が三路スイッチの0と別負荷から来た電源線と照明の非接地側から来た線を繋ぐ。(VVF1.6 x 3(小))
次に接地側は別負荷からの接地側と照明の接地側を繋ぐ。(VVF1.6 x 2(〇))
つまり〇 x 3と小 x 1
が必要になります。
【答え・ロ】
問題43
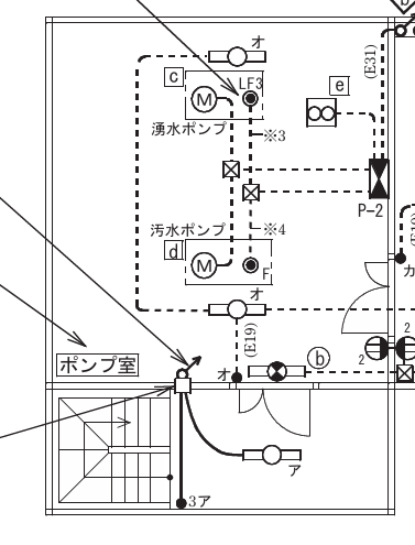
⑬で示す地下1階のポンプ室内で使用されていないものは。

【解説】
⑬はこの部分です。

イはプルボックスです。
ロはフロートスイッチです。
ハは露出形スイッチボックス
二はリコモンスイッチです。
これも知識問題ですが使われていないのは二です。
【答え・二】
問題44
⑭で示す部分の配線工事に必要なケーブルは。
ただし,心線数は最少とする。

【解説】
⑭はこの部分です。

この部分はB1Fと1Fの階段の照明を入り切りする部分になります。
三路スイッチの回路になります。
複線図を書くと以下のようになります。

まず三路スイッチなのでB1と1Fの三路スイッチの1と3をそれぞれ繋ぐ線が必要になります。
それと蛍光灯アに繋ぐ接地線と非接地線が必要になりますので、⑭は合計4本必要になります。
したがって必要なケーブルはVVFの2心が2本必要です。
したがってハが正解です。
【答え・ハ】
問題45
⑮で示す部分の工事で,一般的に使用されることのないものは。

【解説】
⑮はこの部分です。

⑮のところは、E31と記載があります。
ねじなし電線管が使用されています。
まず順に、見ていくと
イはリード型ねじ切り器です。
ロはパイプバイスです。
ハは金切のこです。
二はパイプベンダです。
ロのパイプバイスは金属管を固定するのに使います。
ハの金切りのこは金属管を切断するのに使います。
二のパイプベンダは金属管の曲げに使います。
したがってイのリード型ねじ切り器が使いません。
リード型ねじ切り器は金属管のねじ切りに使いますが今回はねじなし電線管なので使いません。
【答え・イ】
問題46
⑯で示す部分の工事で,一般的に使用されることのないものは。

【解説】
⑯はこの部分です。

⑯は金属管のねじなし管が使用されています。
順に見ていくと
イはサドルです。
ロはカップリングです。
ハはノーマルベンドです。
二はねじなしボックスコネクタです。
イのサドルは電線管を造営材に付ける際に使用します。
ハのノーマルベンドは金属管の曲がったところに使用します。
二のねじなしボックスコネクタはねじなし管の接続に使用します。
したがってイのカップリングは使用しません。
因みにカップリングは薄鋼金属管の接続に使用します。
【答え・ロ】
問題47
⑰で示すボックス内の接続をすべて圧着接続とする場合,使用するリングスリーブの種類と最少個数の組合せで,正しいものは。
ただし,使用する電線はすべてVVF1.6とし,地下1階へ至る配線の電線本数(心線数)は最少とする。

【解説】
⑰はこの部分です。

まずは複線図を書きます。

本問題ではすべてVVF1.6とあります。
したがって
1.6 x 2(〇)
1.6 x 2(〇)
1.6 x 2(〇)
1.6 x 3(小)
1.6 x 4(小)
カッコ内は刻印ですがリングスリーブはすべて小を使いますのでハになります。
【答え・ハ】
問題48
⑱で示すボックス内の接続をすべて差込形コネクタとする場合,使用する差込形コネクタの種類と最少個数の組合せで,正しいものは。
ただし,使用する電線はすべてVVF1.6とする。

【解説】
⑱はこの部分です。

まずは複線図を書きます。

したがって
VVF1.6 x 3
VVF1.6 x 3
VVF1.6 x 4
になります。
【答え・ロ】
問題49
この配線図の図記号から,この工事で使用されているコンセントは。

【解説】
この問題は知識問題です。
正しいのはロです。
ロのコンセントは接地極付き接地端子付きコンセント(1口)です。
EETと表記されます。
自動販売機の横で使われています。
イはただの接地端子付コンセント(1口)です。ETと表記されます。
ハは防雨形接地端子付きコンセントの抜止形です。
WP LK ETと表記されます。
二は接地極と接地端子が付いたコンセントです。これも防雨形で抜止形です。
LK WP EETと表記されます。
【答え・ロ】
問題50
この配線図の図記号から,この工事で使用されていないスイッチは。
ただし,写真下の図は,接点の構成を示す。

【解説】
イはフロートレススイッチです。
ロは電磁開閉器用押しボタンです。
ハは確認表示灯内蔵スイッチです。
二は位置表示灯内蔵スイッチです。
使われていないのはハです。
【答え・ハ】
Sponsored link





