令和元年度
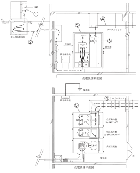
図は、一般送配電事業者の供給用配電箱(高圧キャビネット)から自家用構内を経由して、地下1階電気室に施設する屋内キュービクル式高圧受電設備( JIS C 4620 適合品 )に至る電線路及び低圧屋内幹線設備の一部を表した図である。
[注1.] 図において、問いに直接関係のない部分等は、省略又は簡略化してある。
[注2.] UGS:地中線用地絡継電装置付き高圧交流負荷開閉器

問題30
- ①に示す地絡継電装置付き高圧交流負荷開閉器(UGS)に関する記述として、不適切なものは。
- イ.電路に地絡が生じた場合、自動的に電路を遮断する機能を内蔵している。
- ロ.定格短時間耐電流は、系統(受電点)の短絡電流以上のものを選定する。
- ハ.短絡事故を遮断する能力を有する必要がある。
- ニ.波及事故を防止するため、一般送配電事業者の地絡保護継電装置と動作協調をとる必要がある。
【解説】
UGSは、地絡事故(電路に地絡が生じた場合)からの保護を行ないます。それを検出して自動で開放します。
短絡事故を防ぐことはできません。
【答え・ハ】
問題31
- ②に示す構内の高圧地中引込線を施設する場合の施工方法として、不適切なものは。
- イ.地中電線に堅ろうながい装を有するケーブルを使用し、埋設深さ(土冠)を 1.2 mとした。
- ロ.地中電線を収める防護装置に鋼管を使用した管路式とし、管路の接地を省略した。
- ハ.地中電線を収める防護装置に波付硬質合成樹脂管(FEP)を使用した。
- ニ.地中電線路を直接埋設式により施設し、長さが 20 mであったので電圧の表示を省略した。
【解説】
地中電線路を直接埋設式または管路式によって施設するときは、ケーブル標識シートと埋設箇所の表示を行なわなければなりません。
ただし、地中線路の長さが15m以下の場合は、省略することができます。
従って20mは省略できません。
【答え・ニ】
問題32
- ③に示すPF・S形の主遮断装置として、必要でないものは。
- イ.相間、側面の絶縁バリア
- ロ.ストライカによる引外し装置
- ハ.過電流ロック機能
- ニ.高圧限流ヒューズ
【解説】
③にはLBSと書かれています。LBSとは高圧限流ヒューズ付高圧交流負荷開閉器のことです。
- 相間、側面の絶縁バリア
- ストライカによる引外し装置
- 高圧限流ヒューズ
過電流ロック機能は、UGS(地中線用地絡継電装置付高圧交流負荷開閉器)の説明です。
過電流ロック機能とは、短絡事故時には開放せずにロックしておき上位の遮断器が遮断開放した後、無電圧になった後、自動的に開放する機能です。
これは気中開閉器付属のSOG動作の機能です。
【答え・ハ】
問題33
- ④に示すケーブルラックの施工に関する記述として、誤っているものは。
- イ.ケーブルラックの長さが 15 mであったが、乾燥した場所であったため、D種接地工事を省略した。
- ロ.ケーブルラックは、ケーブル重量に十分耐える構造とし、天井コンクリートスラブからアンカーボルトで吊り、堅固に施設した。
- ハ.同一のケーブルラックに電灯幹線と動力幹線のケーブルを布設する場合、両者の間にセパレータを設けなくてもよい。
- ニ.ケーブルラックが受電室の壁を貫通する部分は、火災延焼防止に必要な耐火処理を施した。
【解説】
ケーブルラックを施工する場合、必ずD種接地工事をしなければなりません。
【答え・イ】
問題34
- ⑤に示す高圧受電設備の絶縁耐力試験に関する記述として、不適切なものは。
- イ.交流絶縁耐力試験は、最大使用電圧の 1.5倍の電圧を連続して 10分間加え、これに耐える必要がある。
- ロ.ケーブルの絶縁耐力試験を直流で行う場合の試験電圧は、交流の 1.5倍である。
- ハ.ケーブルが長く静電容量が大きいため、リアクトルを使用して試験用電源の容量を軽減した。
- ニ.絶縁耐力試験の前後には、1000 V以上の絶縁抵抗計による絶縁抵抗測定と安全確認が必要である。
【解説】
ケーブルの絶縁耐力試験を直流で行う場合の試験電圧は、交流の2倍です。
【答え・ロ】
Sponsored link





